资料下载

公司主营产品户〈 内〉外真空断路器、多〈少〉油断路器、隔离开关、跌落式熔断器、避雷器、绝缘子、高压熔断器、穿墙套管、负荷开关、电站金具等产品。

资料下载

公司简介

鹏高电气自创办以来,就实施高起点、高质量、高水平的“三高”战略,以完整科学的质量管理体系,倾力打造行业品牌。

企业文化

公司始终以“质量重于山,诚信大与海”经营方针,和以“质量为首”的立业宗旨,“我们始终努力的创新科技、专注质量品牌”。

产品中心

当前位置: 首页 > 产品中心 > 高压隔离开关 > GN22型户内隔离开关

GN22型户内隔离开关

详细信息
GN22-12(C)型隔离开关
◎概述

GN22-12(C)型隔离开关适用于三相交流50Hz,额定电压12KV的户内装置。供高压设备的有电压 而列负荷载的情况下接通,切断或转换线路之用。

◎型号说明
GN22-12(C)型隔离开关
◎使用环境条件

海拔:不超过1000m;

周围空气温度:-30 +40;

周围环境相对湿度:日平均不大于95%;

月平均值不大于90%。地震强度不超过8级

安全场所:没有火灾,易燃,易爆,严重污秽,化学腐蚀及剧烈振动场所。

◎主要技术参数
项目
单位
数据
额定电压
KV
12
额定功率
Hz
50

额定电流

A
1600 200
2500 3150
额定短路耐受电流
KA
40
50
额定峰值耐受电流
KA
100
125
额定短时持续时间
S
4
额定绝缘水平
工频耐受电压
KV
极间,极对地42断开口49
雷电冲击耐受电压(峰值)
KV
极间,极对地75断开口85

 

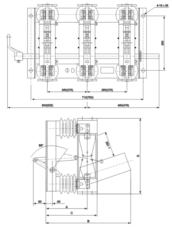
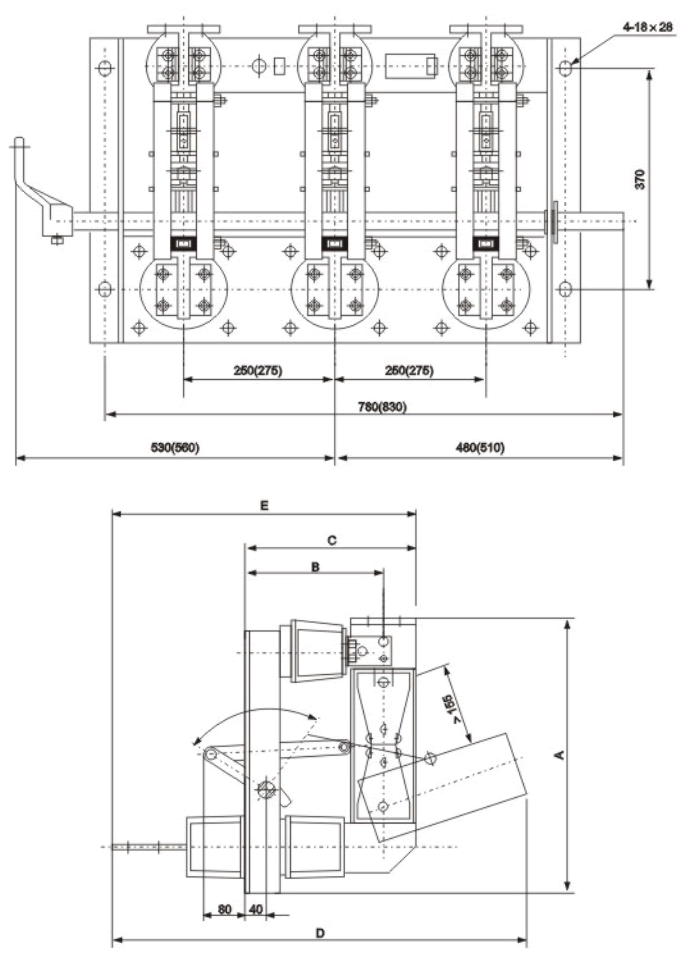
◎外形安装尺寸
型号
A
B
C
D
E
GN22-12/1600-2000
255
305
527
490
50
GN22-12/2500-3150
262
325
538
494
60

 

型号
A
B
C
D
E
GN22-12C/1600-2000
537
255
305
807
580
GN22-12C/2500-3150
539
267.5
330
880
630
GN22-12(C)型隔离开关
GN22-12)型隔离开关
GN22-12(C)型隔离开关
GN22-12(C)型隔离开关
产品样本
电子样本