资料下载

公司主营产品户〈 内〉外真空断路器、多〈少〉油断路器、隔离开关、跌落式熔断器、避雷器、绝缘子、高压熔断器、穿墙套管、负荷开关、电站金具等产品。

资料下载

公司简介

鹏高电气自创办以来,就实施高起点、高质量、高水平的“三高”战略,以完整科学的质量管理体系,倾力打造行业品牌。

企业文化

公司始终以“质量重于山,诚信大与海”经营方针,和以“质量为首”的立业宗旨,“我们始终努力的创新科技、专注质量品牌”。

产品中心

当前位置: 首页 > 产品中心 > 高压隔离开关 > GW13型中性点户外高压隔离开关

GW13型中性点户外高压隔离开关

详细信息
◎概述

GW13 系列中性点隔离开关是在无载荷情况下,分何变压器中性点联线之用,在闸刀处于正常分闸位置时,可提供一个符合安全要求的绝缘距离.操动机构输出轴可作180度水平旋转,操作机构上的定位装置能保证触头与静触头处于正确位置或分断位置.本中性点隔离开关满足GB1985《交流高压隔离开关和接地开关》及IEC-129(1984)标准要求。它性能可靠、运行安全、结构简单、安装调整方便。广泛使用于63KV-110KV变电站。

特点
1、改进了轴承转盘结构,使轴承座实现了防水功能。且配有注油孔、调整螺钉,开关的整体性强且维护更加简单、方便。
2、导电杆与触头之间、导电杆与触指座之间均采用铜焊工艺,另外触指与触指座之间加装软连接,使产品的主回路电阻比采用螺钉连接的大幅减小,从而减少触头在运行中的发热问题。接地导杆采用导电性能优良的铝合金,触头部分采用铜铸件,导电杆与底座连接处及接地触指与触指座之间均加装软连接,因此接地回路的导电性能大大的增强。
3、导电外露部分均采用紫铜镀银的表面处理工艺,镀银处理,表面光洁、美观、抗腐蚀能力强、持久耐用。
4、改进轴与孔配合方式:铁与铜配合改为铜与铜配合或不锈钢与铜配合,解决了在户外长期使用出现的咬死现象。外露标准件采用不锈钢;金属件采用热镀锌处理,开关的耐腐蚀能力更强。

 

◎主要技术参数
单位 GW13-72.5 GW13-126
额定电压 KV 72.5 126
额定电流 A 630 630
额定短时耐受电流4s KA 20 20
额定峰值耐受电流 KA 50 50
1min工频耐压(有效值) KVs 140 230
雷电冲击耐压(峰值) KV 325 450
机械寿命 2000 2000
分闸后最小绝缘间隙 mm >675 >1050
主回路电阻
μΩ
<180 <200
配用机构 ? GS17或GJ6、CK7、CS14
单极重 kg 160 200
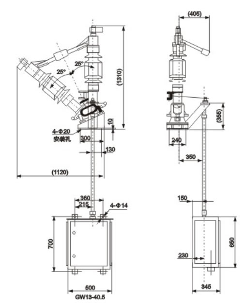
◎外形安装尺寸
 
GW4系列户外高压隔离开关
GW4系列户外高压隔离开关
产品样本
电子样本