资料下载

公司主营产品户〈 内〉外真空断路器、多〈少〉油断路器、隔离开关、跌落式熔断器、避雷器、绝缘子、高压熔断器、穿墙套管、负荷开关、电站金具等产品。

资料下载

公司简介

鹏高电气自创办以来,就实施高起点、高质量、高水平的“三高”战略,以完整科学的质量管理体系,倾力打造行业品牌。

企业文化

公司始终以“质量重于山,诚信大与海”经营方针,和以“质量为首”的立业宗旨,“我们始终努力的创新科技、专注质量品牌”。

产品中心

当前位置: 首页 > 产品中心 > 高压负荷开关 > FN7型负荷开关

FN7型负荷开关

详细信息

FN7-12系列户内高压负荷开关及熔断器组合器

◎概述

FN7-12DR型交流高压负荷开关是一种新型产气式户内高压负荷开关,适用于交流50HZ额定电压12KV的三相交流电力系统中,作为开断负荷电流及关合短路电流之用。

◎使用环境条件
◎使用环境条件

正常使用条件:

*周围空气温度

上限:+40℃,

下限:一般地区10℃,高寒区-25℃。

*海拔高度为1000及以下。

*相对湿度:日平均值不大于95%,月平均值不大于90%;

*周围空气应不受腐蚀性或可燃性气体及水蒸汽体等明显污染;

*无经常性的剧烈振动

◎主要技术参数

额定电压(KV) 绝缘水平 额定电流(A) 额定热稳定电流(KA有效值4s) 额定动稳定电流(KA有效值) 额定短路关合电流(KA峰值)
  工频50HZ耐压一分钟(KV有效值) 雷电冲击耐压(KV有效值) 400 12.5 31.5 31.5
12 相间、相对42 相间、相地48 630 20 50 50
隔离断口48 隔离断口85
 
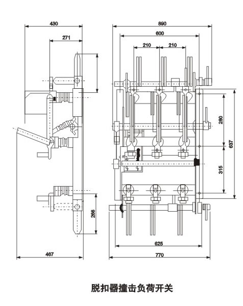
◎外形安装尺寸
FN7-12系列户内高压负荷开关及熔断器组合器
FN7-12系列户内高压负荷开关及熔断器组合器
产品样本
电子样本