资料下载

公司主营产品户〈 内〉外真空断路器、多〈少〉油断路器、隔离开关、跌落式熔断器、避雷器、绝缘子、高压熔断器、穿墙套管、负荷开关、电站金具等产品。

资料下载

公司简介

鹏高电气自创办以来,就实施高起点、高质量、高水平的“三高”战略,以完整科学的质量管理体系,倾力打造行业品牌。

企业文化

公司始终以“质量重于山,诚信大与海”经营方针,和以“质量为首”的立业宗旨,“我们始终努力的创新科技、专注质量品牌”。

产品中心

当前位置: 首页 > 产品中心 > 高压负荷开关 > FZW32型户外真空负荷开关

FZW32型户外真空负荷开关

详细信息

FZW32-12/T630-20系列户外交流高压真空断路器负荷开关

◎概述
主要用途FZW32-12/T630-20型户外高压隔离真空负荷开关是新一代高压电器产品。经严格的型式试验和长期试运行考核。各项技术性能指标全部达到GB-3804IEC标准。该产品主要为城网农网建设的改造而设计,适用额定电压12KV。三相交流50HZ的供电网络中,该产品底架采用不锈钢材料或热镀锌外加防紫外线保护涂料的碳钢,确保了机体在户外环境下的正常运行,零部件采用不锈钢材料,确保了负荷开关的耐用性,稳定性和防水 防盐雾等性能该产品具有体积小 重量轻 外型美观 操作简便 高参数,开断能力大,安全可靠,电寿命长,可频繁操作。少维护 断口明显等级具显著的特点。操作方式采用单杆式手动操作,也可采用电动,远控操作。
◎主要技术参数

负荷开关主要技术参数

序号
名称
单位
参数
1
额定电压
KV
12
2
额定频率
HZ
50
3
额定电流
A
630
4
额定有功负载开断电流
A
630
5
额定才环开断电流
A
630
6
5%额定有功负载开断电流
A
31.5
7
额定电缆充电开断电流
A
10
8
1min工频耐受电压:真空
断口相关 相对地/隔离断
KV
42/48
9
雷电冲击耐受电压;相向相对
地/隔离断口
KV
75/85
10
额定短时耐受电流(热稳定)
KA
20
11
额定短路持续时间
S
4
12
额定峰值受电流(动稳定)
KA
50
13
额定短路关合开关
KA
50
14
机械寿命
10000
15
真空灭弧室触头允许磨损厚度
mm
0.5
16
手动操作力矩
Nm
≤200
17
额定空载变压器开断容量
KVA
1600
18
额定开断电容器组电流
A
100

二.负荷开关真空灭弧室装置配调整技术参数
序号
名称
单位
参数
1
触头开距
mn
5=1
2
平均分闸速度
m/s
1.1=0.2
3
三相分闸不同期
ms
<5
4
三相合闸不同期
ms
<5
5
带电体之间及相对地距离
mn
>200
6
辅助同睡电阻
μΩ
>400

三.隔离刀装置配调整技术参数
序号
名称
单位
参数
1
隔离刀正压力
N
300=50/
2
触刀最后分离点到静触头距离
mm
>180mm
3
进出线端
μΩ
≤150
4
机械寿命
1000


 

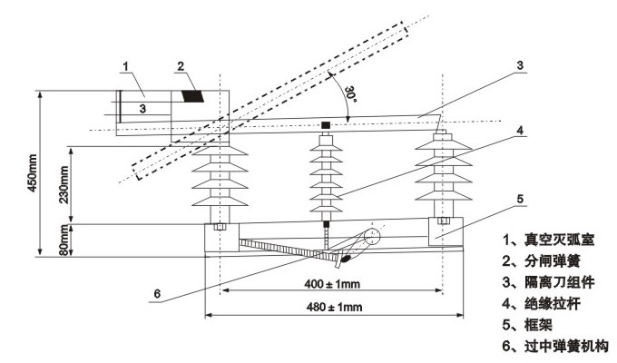
◎外形安装尺寸

FZW32-12/T630-20系列户外交流高压真空断路器负荷开关
产品样本
电子样本